Overview
- 501 m2
- 3 Bedrooms
- 4 Bathrooms
- 1 Garages
Description
Presented by Anan Property Group – Luxury Real Estate & Investment Specialists
Set within the pristine, canopied landscapes of Phuket’s elite west coast, these newly launched luxury pool villas are stylish sanctuaries designed for the discerning global citizen. Blending cutting-edge tropical modernist architecture with design touches inspired by their island setting, this exclusive residential enclave offers a true tropical hideaway.
Located literally just steps from the pristine shores of Layan Bay, these exclusive residences reflect a deep, uninterrupted connection to their lush tropical surroundings. Designed for those seeking total peaceful seclusion without sacrificing immediate access to world-class coastal amenities, this estate represents a highly marketable, premium asset in Phuket’s ultra-luxury residential segment.
Architectural Brilliance & Seamless Indoor-Outdoor Living
With sophisticated indoor-outdoor living placed at the absolute center of their design ethos, these two-storey estates effortlessly invite the outside world in.
Beautifully crafted, lavish interior spaces are uniquely tailored to blend traditional island aesthetics with advanced, high-tech home functionality. Massive floor-to-ceiling windows flood the living spaces with natural light and frame the verdant foliage outside, creating a living experience that is both expansive and deeply intimate.
Key Villa & Design Highlights:
● Massive Coastal Layouts: Offering exceptionally spacious two-storey configurations
designed for ultimate family comfort and grand entertaining.
○ 3-Bedroom Villas: Measuring an impressive 501 sq.m. across two levels.
○ 4-Bedroom Villas: Offering a palatial 655 sq.m. spread across two floors for ultimate peaceful seclusion.
● Private Aquatic Oasis: Every single residence features a stunning private swimming pool
perfectly integrated into the natural landscape.
● Alfresco Entertaining: Massive, generous outdoor entertainment decks wrap around the
pool, perfect for hosting guests or enjoying private relaxation under the tropical sun.
● Smart & Sophisticated: High-tech home functionality ensures a seamless, modern
lifestyle while maintaining a warm, traditional aesthetic.
A Pristine Location at Layan Bay
Layan Bay remains one of Phuket’s most exclusive, serene, and sought-after coastal destinations.
While the villas remain perfectly hidden amidst lush, verdant foliage for a sense of absolute private seclusion, residents enjoy immediate walking access to the pristine shores and calm waters of Layan Bay. Despite its quiet, highly secure residential setting, the estate remains incredibly well-connected to key island amenities, including world-class dining, luxury spas, and the vibrant boutique shopping districts of Boat Avenue and Porto de Phuket.
A Blue-Chip Phuket Property Investment
These tropical modernist villas offer exceptional architectural value and an unparalleled island lifestyle. Because of the strictly limited supply of prime land immediately adjacent to Layan Bay, properties of this caliber consistently command a massive premium in both capital appreciation and high-end rental demand.
Offering highly flexible ownership structures—including both Freehold and Leasehold titles—these properties cater seamlessly to a diverse range of international buyers and investors. The massive 501 sq.m. and 655 sq.m. layouts, combined with their highly private settings and beach proximity, ensure strong capital preservation, excellent resale liquidity, and incredibly high potential for ultra-premium holiday rental performance.
This luxury island enclave is highly suitable for:
● Lifestyle buyers desiring a sophisticated, highly private, and massively spacious island home.
● Buy-to-let investors aggressively targeting the ultra-premium holiday rental market in Layan.
● Families looking for expansive two-story villas with generous outdoor entertainment areas.
● Portfolio builders focused on long-term capital growth and generational wealth preservation.
Secure Your Layan Bay Sanctuary Today
With properties located this close to Layan Bay in incredibly high demand, inventory in this prestigious enclave is highly coveted by the global elite.
Available Configurations & Pricing:
● 3-Bedroom Villas (501 sq.m.): THB 77,000,000 – THB 95,000,000
● 4-Bedroom Villas (655 sq.m.): THB 105,000,000 – THB 120,000,000
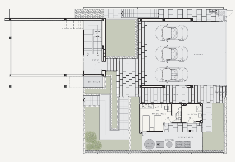
Contact Anan Property Group today to request specific plot availability, review the spectacular two-storey floor plans, and secure your tropical modernist sanctuary at Layan Bay.
Disclaimer: All information provided is for marketing purposes only and is subject to change without prior notice. Areas, layouts, specifications, and completion timelines are approximate and may be amended by the developer. This listing does not constitute a contractual offer.
Buyers are advised to conduct independent due diligence regarding ownership structure, taxes, fees, and legal matters prior to purchase





